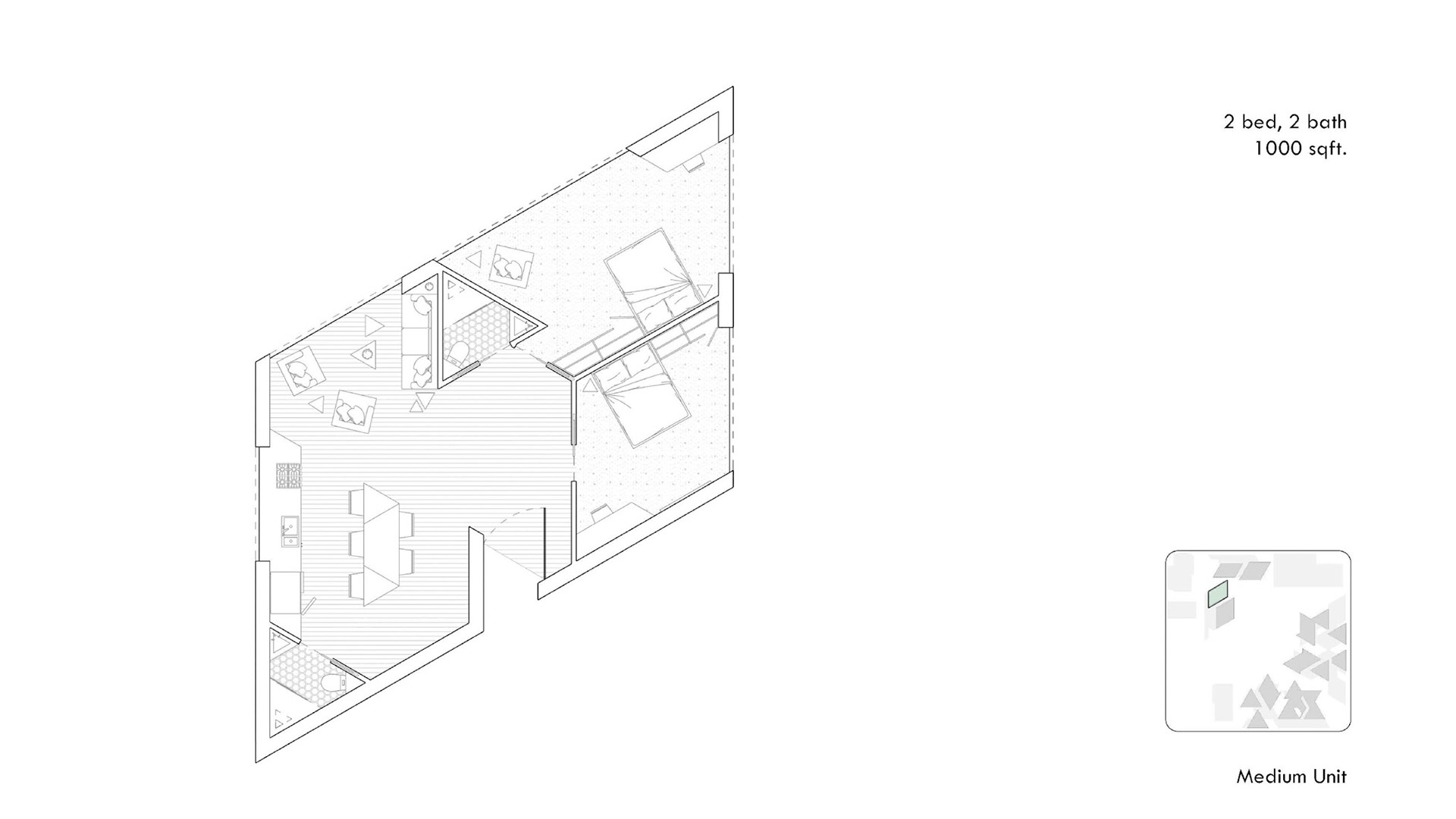
Collective Housing Project designed for the New Orleans Community. Created using Rhino, V-Ray, and Adobe Photoshop